这里是山东,这里有中国第五大造型地貌“岱崮地貌”。2022年,我们从杭州跨越千里来到这里,开启了一段归乡设计建造之旅。无名境回崮自然疗愈民宿在近一年时间建造而成。建造期间,设计总负责人苗坤全程驻场,进行了长达约一年之久的跟踪,现场亲自配合指导施工,让设计无折扣的完美落地!项目位于三线军工厂旧址,这里有保留较为完整的军工厂建筑。
Here is Shandong, where there is China’s fifth largest modeling geomorphology “Dai mesa geomorphology”.
In 2022, we traveled thousands of miles from Hangzhou to begin a journey of design and construction in our hometown.
The Nameless Realm Back to Mesa Nature Healing B&B was built in nearly a year. During the construction period, Mr. Miao Kun, the Chief Designer, was on-site for about a year, personally guiding the construction, so that the design could be perfected without any discounts!
The project is located in the former site of the third-line military factory, where there are more completely preserved military factory buildings.
▼错落有致的建筑群,the buildings are undulating and interweaved with each other ©️ 是然建筑摄影

现有军工厂建筑拆掉还是保留?
设计策略:
1、传承记忆
根据每栋建筑的特色与现状,有针对性的保留历史建筑片墙,让每处记忆都能得以留存,在游览其中时能串联起历史与现在。
2、新旧呼应
让历史建筑与新建建筑在情境上互相融合与呼应,通过新老建筑的搭配与交汇,让红色记忆
得以延续和传承。
▼原军工厂房子,existed biulding

Tear Down or Keep Existing Arsenal Buildings?
Design Strategies:
1、Inherit the memory
According to the characteristics of each building and the current situation, targeted retention of historical buildings piece of wall, so that each memory can be retained, when visiting them can link up the history and the present.
2、Echoing the old and the new
Let the historical buildings and new buildings in the context of mutual integration and echo, through the old and new buildings with the intersection, let the red memory
through the matching and intersection of old and new buildings, so that the red memory can be continued and passed on.
▼接待厅外景,Exterior view of the reception hall ©️ 是然建筑摄影

建筑由26栋小楼以及1栋老房组成,在踏入场地的第一刻,扑面而来的军工纪念墙,把游客带回到 1960 年代, 与当年的人物进行跨时空的对话,近距离感受沂蒙精神与军工文化。进入民宿接待大厅,遗留的片墙与工业设计,重温着军工厂的时光 。进入民宿接待大厅,弹药箱叠合的前台和砖砌9381,唤起那个年代的回忆。
The building consists of 26 small buildings and 1 old house.
At the first moment of stepping into the site, the military industrial memorial wall that comes to the visitor’s face takes him back to the 1960s, where he can have a conversation with the characters of those years, and experience the spirit of Yimeng and the culture of the military industry from a close distance. Entering the reception hall of the B&B, the remaining pieces of wall and industrial design, relive the time of the military fact.Entering the reception hall of the B&B, the ammo box stacked front desk and brick 9381 evoke memories of that era.
▼接待厅室内,Inside the reception hall ©️ 是然建筑摄影

餐厅虚实结合,新旧材质交融,在新体量中感受旧时光。
The dining room is a combination of reality and fiction, with a mix of old and new materials, to feel the old time in the new volum
▼餐厅,Cafeteria

二层的历史漫道与观景塔结合,在行走之间,享受天地的广阔,对话过去和历史。
The historical rambling path on the second floor is combined with the observation tower to enjoy the expanse of heaven and earth between walks, dialoguing about the past and history.
▼连廊外景,Outside view of the corridor ©️ 是然建筑摄影

站在历史漫道上,抬头便可远眺岱崮地貌,畅想未来与明天,低头便能瞥到廊道上的军工记忆 ,抚摸历史遗迹。
Standing on the historical path, you can look up to see the mesa landscape and think about the future and tomorrow, and look down to see the memory of the military industry on the corridor and touch the historical relics.
▼连廊,Linking corridors ©️ 是然建筑摄影

历史漫道的高潮是一座瞭望塔,站在整个片区的制高点,回顾过去,展望未来。
The culmination of the Historic Walkway is a watchtower, standing at the high point of the entire area, looking back to the past and looking forward to the future.
▼瞭望塔,Observation tower ©️ 是然建筑摄影

阳光洒落在房内,在具有历史记忆的墙地面的自然散开,展示过去的精神意义。
Sunlight pours into the room and spreads naturally on the walls and floors with historical memories, demonstrating the spiritual significance of the past.
▼多功能厅室内,Multi-purpose hall indoor ©️ 是然建筑摄影

建筑虚实结合,玻璃体的引入,将景观最大限度的引入建筑内部 。
The building combines reality with reality, and the introduction of the glass body maximizes the view into the interior of the building.
▼书吧室内,Book Bar Interior ©️ 是然建筑摄影

在场地景观最佳的位置,酒吧与室外泳池相邻,能远处巍峨的岱崮地貌,一览无余,尽收眼底。
In the best location of the site’s landscape, the bar is adjacent to the outdoor swimming pool, and has an unobstructed view of the majestic mesa landscape in the distance.
▼酒吧外景,Bar Exterior ©️ 是然建筑摄影

结合现存建筑的片墙,让新老建筑发生对话。
Incorporating the existing building’s sheet walls allows a dialog to occur between the old and the new
▼酒吧室内,Bar Interior ©️ 是然建筑摄影

灵感源自沂蒙山区的古村落肌理,在具有高差的场地内,小路曲折蜿蜒,一步一景,颇具崮乡古朴的人文气质 。客房区静谧低调,建筑整体与周边景观氛围保持一致。 尺度不一的庭院给各类客人带来较高的私密性与沉浸式体验感。
Inspired by the texture of the ancient villages in the Yimeng mountainous area, the paths twist and turn in the site with a difference in elevation, one step at a time, quite a mesa township ancient and simple humanistic temperament. The guest rooms are quiet and understated, and the architecture is consistent with the surrounding landscape. The courtyards are of varying scales, providing a high degree of privacy and immersive experience for all types of guests.
▼客房区小路,Guest House Area Path ©️ 是然建筑摄影

▼客房区,Guest room area ©️ 是然建筑摄影

▼接待区平面图,Floor plan of the reception area ©️ 归乡宅院

▼接待区剖面图,Section of the reception area ©️ 归乡宅院

▼多功能厅平面图,Multi-functional hall floor plan ©️ 归乡宅院

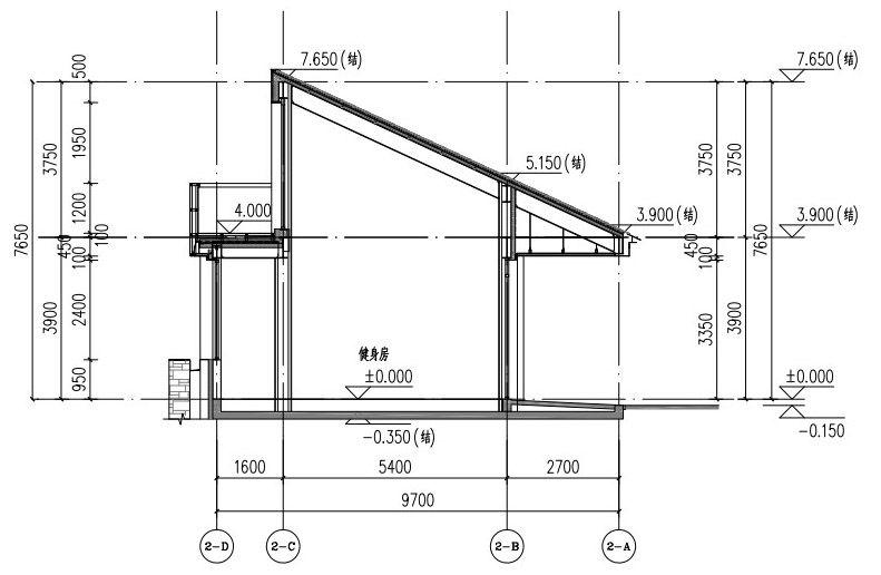
▼多功能厅剖面图,Multi-functional hall section ©️ 归乡宅院

项目名称:无名境回崮自然疗愈民宿
项目类型:酒店
设计方:杭州归乡宅院科技有限公司
公司网站:https://hzgxzyzdty.gys.cn/
联系邮箱:xuuuyan@163.com
项目设计:2022年
完成年份:2023年
设计团队:苗坤、张顼、吴道民
项目地址:山东省蒙阴县岱崮镇
建筑面积:5000㎡
摄影版权:是然建筑摄影
合作方:那方建筑
客户:山东胜境文化旅游开发有限公司
材料:水刷石、灰泥、锈板、铝板、榆木
品牌:科勒
Project name:Wumingjing Huigu Nature Healing B&B
Project type:Hotel
Design:Hangzhou Return Home Technology Co.
Website:https://hzgxzyzdty.gys.cn/
Contact e-mail:xuuuyan@163.com
Design year:2022
Completion Year:2023
Leader designer & Team:Miao Kun, Zhang Xu, Wu Daomin
Project location:Daigu Town, Mengyin County, Shandong
Gross built area: 5000㎡
Photo credit: ShiranArchitectural Photography
Partner:Nafang Architecture
Clients:Shandong Shengjing Cultural Tourism Development Co.
Materials:Brushed stone, stucco, rust plate, aluminum plate, elm wood
Brands:Kohler